Gestaltungselemente für Spiel- und Erlebnisräume
Spielgeräte, Spiel- und Begegnungsräume, Garten- und Parkausstattungen. Für Klein und Groß, für Jung und Alt, für alle Sinne.
Fragen Sie uns an! Wir freuen uns.
Artikelnummer: S 07030103
Chill-Out-Matte Stahl-Holz
Produktbeschreibung
'Chill-Out-Matte' StahlHolz Timber Steel gsm
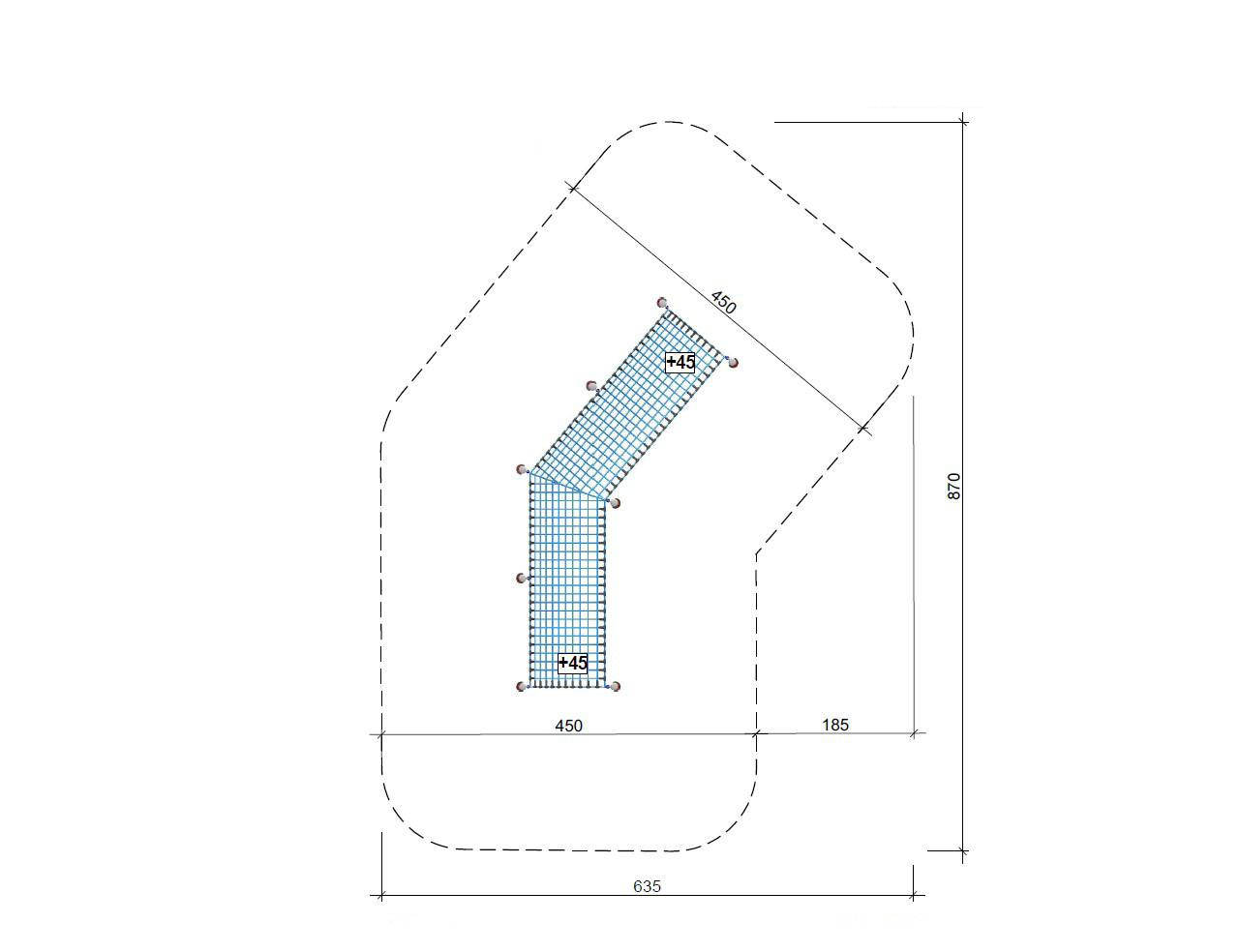
Liegenetzgestell aus 8 Stahlrohrpfosten ø 88,9 x 3,2 mm, feuerverzinkt, mit an jedem Metallpfosten aufgesetzter formschlüssiger Holzschale, lasiert, Liegenetz leicht abgewinkelt, aus ø 16 mm Herkulesseil mit Stahlseele, Maschenweite 13 x 13 cm, geflochten, 2-teilig mit Eckpunktaufhängungen an Stahlrohrpfosten.
Auf Wunsch auch nach allen gängigen RAL-Farbtönen pulverbeschichtet.
| Technische Information: |
| Maße: | Länge 600 cm Breite 150 cm Höhe 125 cm + BE |
| Mindestraum: | 870 x 635 cm |
| Fallhöhe: | 100 cm |
| Alter: | 0 |
Preis auf Anfrage
Lieferzeit auf Anfrage
Kontakt:
Rathschlag Gmbh
Löhnberger Hütte 1
35792 Löhnberg
06471/9909-0
info@rathschlag.com